slider photo

For sale 3-room apartment with 2 bathrooms in Warsaw, Targówek

  • 25084
  • Built: 2018

  • Rooms: 3

  • Bathrooms: 2

  • 71.36 sq.m

  • Floor: 2

  • Floors: 3

1 229 000

  • $: 308872
  • €: 283511
  • ₴: 11503690
Contact

Description

For sale 3-room apartment with 2 bathrooms in Warsaw, Targówek, area 72 m², on the 2nd floor of the building from 2018. The apartment is located in the Wilno housing estate, just 20 minutes from the Świętokrzyska metro station. Excellent transport accessibility, its own railway station, various places for recreation and developed trade and service infrastructure.

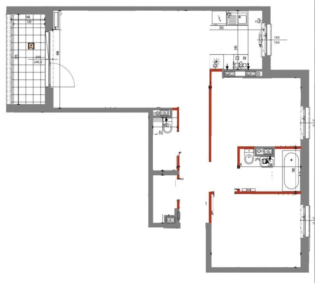
The apartment is made with attention to detail: almost the entire area is covered with olive ash, in the bathroom - porcelain tiles, and in the bedrooms - hypoallergenic carpets. Internal wooden doors, skirting boards and kitchen are made to order. Worktop - olive ash. Built-in appliances Bosch, Samsung, Smeg, Amica and Electrolux. The living room has built-in shelves and a work space. Spacious bedrooms with roomy wardrobes. On the balcony there is artificial grass, easy to maintain. Rooms: kitchen with living room (31 m²), master bedroom (11.5 m²), children's bedroom (12.7 m²), bathroom with bath and shower (4.6 m²), dressing room (2.25 m²), toilet with mini-washing machine (2.25 m²), hallway (7.3 m²), loggia (9 m²).

The apartment is located in a closed, guarded complex, with a separate storage room and a parking space in the underground garage (60,000 PLN).

The area has many shops, restaurants, educational institutions and shopping centers (CH Wileńska, Atrium Targówek, M1, IKEA in Markach). Excellent transport accessibility, 4 minutes to the Dworzec Wileński metro station, 15 minutes to the Świętokrzyska metro station, 4 km to the S8 route.

Map

pic
pic
pic
pic
pic
pic
pic
pic
pic
pic
pic
pic
pic
pic
pic
pic
pic
pic

Ask a Question

FULL NAME

E-mail

Telephone

Question

I give permission to process data by a private entrepreneur NIP 9512427031 with an office in Warsaw Wiertnicza 99 by Privacy policy and to receive real estate offers by phone, e-mail or SMS

Your request has been sent successfully! We will contact you shortly
icon

Contact us

Chats