slider photo

For sale spacious 2-room apartment 67.85m², Warsaw, Wilanów, st. Sarmacka

  • 26926
  • Built: 2007

  • Rooms: 2

  • Bedrooms: 1

  • Bathrooms: 1

  • Balconies: 1

  • Garage: 2

  • Repair: Living status

  • Windows: Tree

  • 67.85 sq.m

  • Floor: ground floor

  • Floors: 4

  • Separate kitchen

  • Underground parking

1 140 000

  • $: 286504
  • €: 262980
  • ₴: 10670632
Contact

Description

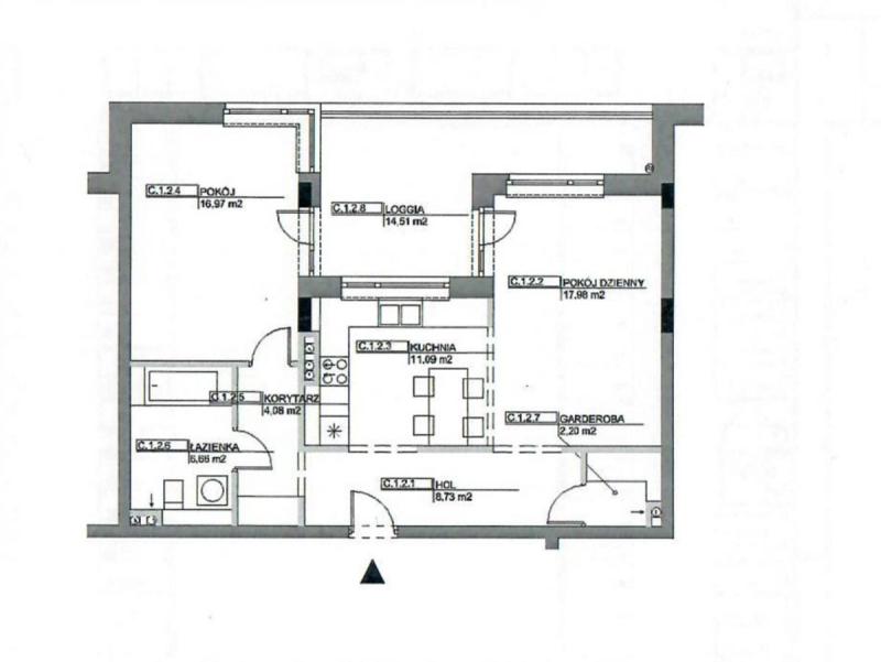
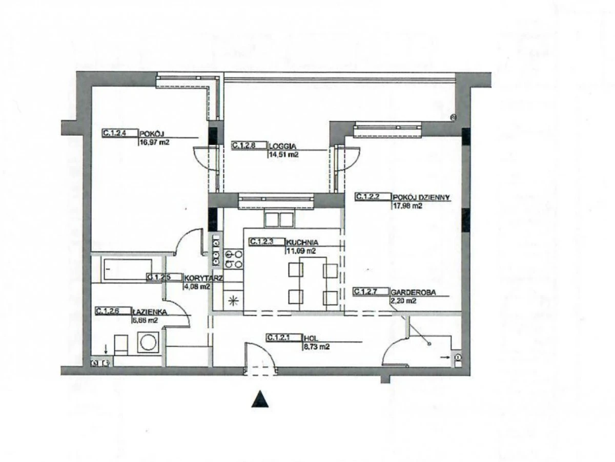
For sale Spacious 2-room apartment (67.85m²) with 3rd room potential, Warszawa Wilanów, Sarmacka str.
Raised ground floor, 2007, 14.51m² loggia, 3m ceilings.
Key highlights:
• Flexible layout: living room (18m²), kitchen (11m²), bedroom (17m²), hall (8.7m²) + study/child room option,
• Security premium: P4 anti-burglary glass, alarm system, 24h guarded complex,
• Elite location: 2 min to international schools (American School, British School), near Medicover hospital, pools, bike paths,
• Extras: 2 platform parking spots (50,000 PLN), 14.5m² loggia (no garden).

Map

Floor plan

plan plan plan plan
pic
pic
pic
pic
pic
pic
pic
pic
pic
pic
pic
plan
plan
plan
plan

Ask a Question

FULL NAME

E-mail

Telephone

Question

I give permission to process data by a private entrepreneur NIP 9512427031 with an office in Warsaw Wiertnicza 99 by Privacy policy and to receive real estate offers by phone, e-mail or SMS

Your request has been sent successfully! We will contact you shortly

23277

71.60 m2

Rooms: 3

Bathrooms: 1

Balconies: 1

Floor: 10

Floors: 11

1 140 000

zł / month

  • $: 286504
  • €: 262980
  • ₴: 10670632
icon

Contact us

Chats