slider photo

A spacious three-room apartment for rent in Mokotów!

  • 27722
  • Built: 1955

  • Rooms: 3

  • Bathrooms: 1

  • Storerooms: 1

  • 62.00 sq.m

  • Floor: 3

  • Floors: 3

4 500

zł / month
  • $: 1130
  • €: 1038
  • ₴: 42120
Contact

Description

A spacious three-room apartment for rent in Mokotów, located at the intersection of Iwicka and Podchorążych Streets. The building is nestled among greenery, inside a peaceful residential estate, just 500 meters from the entrance to Łazienki Park.

The apartment has undergone a full renovation, including all new installations and flooring. Tastefully furnished and finished, with high ceilings (270 cm), it has a north-south exposure and large windows overlooking trees.

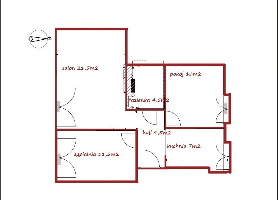
The total area of 62 m² consists of:

  • living room – 21 m²

  • bedroom with double bed and wardrobe – 11.5 m²

  • second bedroom / children's room / home office – 11 m²

  • bright, separate kitchen – 7 m²

  • bathroom with toilet – 4.5 m²

  • hallway – 4.5 m²

The apartment is fully furnished and equipped with all necessary household appliances. All furniture and fittings were custom-made.

Kitchen equipment includes: fridge with freezer, oven, dishwasher, induction hob, extractor hood, built-in cabinetry.
Bathroom: bathtub with shower, washer-dryer combo.

Perfect location for professionals working in central districts, yet seeking peace and nature. Nearby green areas include Łazienki Park, Morskie Oko, and the Vistula riverbanks.

The apartment is on the 3rd floor in a building without an elevator.

Public transport:

  • trams and buses to Plac Unii Lubelskiej (metro)

  • bus stops along Wisłostrada, Belwederska, and Aleje Ujazdowskie

  • two stops to Plac Unii Lubelskiej and further to Marszałkowska

Costs:

  • rent + administrative and maintenance fees – 800 PLN

  • electricity based on usage

  • security deposit – 10,000 PLN

  • occasional lease (najem okazjonalny) required

 

Feel free to contact me to schedule a viewing.

Map

pic
pic
pic
pic
pic
pic
pic
pic
pic
pic
pic
pic
pic
pic
pic
pic
pic
pic
pic
pic

Ask a Question

FULL NAME

E-mail

Telephone

Question

I give permission to process data by a private entrepreneur NIP 9512427031 with an office in Warsaw Wiertnicza 99 by Privacy policy and to receive real estate offers by phone, e-mail or SMS

Your request has been sent successfully! We will contact you shortly

New

28516

45.00 m2

Rooms: 2

Bedrooms: 1

Bathrooms: 1

Balconies: 1

Garage: 1

Floor: 3

Floors: 8

4 200

zł / month

  • $: 175
  • €: 161
  • ₴: 6552

28036

64.00 m2

Rooms: 3

Bedrooms: 3

Bathrooms: 1

Balconies: 1

Floor: 3

Floors: 4

4 500

zł / month

  • $: 276
  • €: 253
  • ₴: 10296

27650

69.00 m2

Rooms: 2

Bedrooms: 1

Bathrooms: 10

Balconies: 1

Dressing rooms: 1

Storerooms: 1

Garage: 1

Elevators: 2

Floor: 4

Floors: 7

4 500

zł / month

  • $: 326
  • €: 299
  • ₴: 12168
icon

Contact us

Chats