slider photo

Продаётся под ремонт 2-комнатная квартира 50,30 м², Варшава, Bemowo, ул. gen. Waleriana Czumy

  • 28008
  • Комнат: 2

  • Спальни: 1

  • Ванная: 1

  • Балконы: 1

  • Кладовки: 1

  • 50.30 кв.м

  • Этаж: 3

  • Этажность: 3

  • Отдельная кухня

629 797

  • $: 158280
  • €: 145284
  • ₴: 5895028
Связаться

Описание

Продаётся 2-комнатная квартира в Варшаве, Bemowo Jelonki, ул. gen. Waleriana Czumy. Площадь 50,30 м².

Описание
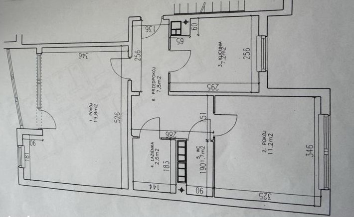
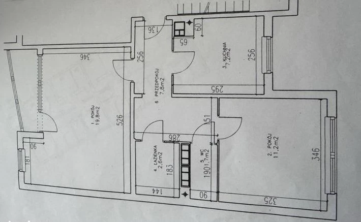
Уютная квартира в тихом зеленом районе Bemowo Jelonki с возможностью перепланировки. Просторная гостиная 19,8 м² с выходом на лоджию, вторая комната 11,2 м², отдельная кухня 7,2 м² и функциональный коридор 7,8 м². Раздельный санузел.

Квартира требует ремонта, что позволяет реализовать индивидуальные дизайнерские решения. Визуализация демонстрирует возможность создания дополнительной комнаты и переноса кухни в гостиную.

В цену включена кладовая 3 м².

Ключевые преимущества
• Тихая зеленая локация в окружении парков и велодорожек
• Отличная транспортная доступность: метро, трамваи и автобусы
• Близость к парку Górczewska для активного отдыха
• Развитая инфраструктура: школы, детские сады, магазины
• Наземная парковка и кладовая для дополнительного хранения
• Возможность перепланировки под индивидуальные потребности

Идеальное предложение для тех, кто ценит спокойствие природы и городские удобства. Квартира с большим потенциалом для создания современного жилого пространства в одном из самых зеленых районов Варшавы.

 

Карта

План помещения

plan
pic
pic
pic
pic
pic
plan

Задать вопрос

ФИО:

E-mail:

Телефон:

Вопрос:

Даю разрешение на обработку данных частным предпринимателем NIP 9512427031 с офисом в Варшаве Wiertnicza 99 согласно Политикой конфиденциальности на получение предложений недвижимости путем телефона, имейла или смс

Ваша заявка была успешно отправлена! Мы скоро свяжемся с Вами.

28467

44.41 m2

Комнат: 2

Спальни: 1

Ванная: 1

Кладовки: 1

Этаж: 1

Этажность: 4

630 000

zł / месяц

  • $: 158331
  • €: 145331
  • ₴: 5896928

25927

53.30 m2

Комнат: 3

Спальни: 2

Ванная: 1

Балконы: 1

Кладовки: 1

Лифты: 1

Этаж: 4

Этажность: 10

630 000

zł / месяц

  • $: 158331
  • €: 145331
  • ₴: 5896928

23631

27.00 m2

Комнат: 1

Ванная: 1

Этаж: 10

Этажность: 15

630 000

zł / месяц

  • $: 158331
  • €: 145331
  • ₴: 5896928
icon

Контакты

Chats