slider photo

56平方米 - 办公室,贸易,服务 - 底楼,带一个站点。

  • 27319
  • 建成: 2018

  • 客房: 2

  • 平方米

  • 地面: 底层

  • 楼层: 3

4 200

zł / 月份
  • $: 1055
  • €: 968
  • ₴: 39312
接触

描述

Osiedle "Wiślany Mokotów" na warszawskich Siekierkach to od kilku lat nowe i dynamicznie rozwijające się miejsce na mieszkaniowej mapie stolicy. Na parterach eleganckich trzypiętrowych budynków mieszkalnych przy ulicy Marii Cetysówny (od strony frontu i witryn lokali) oraz Ananasowej (wjazd na osiedle i do garażu) znajdują się nowoczesne lokale handlowe, usługowe i biurowe.

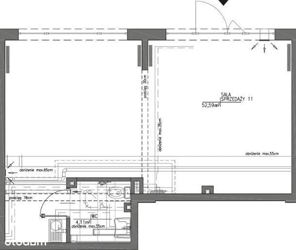
Aktualnie do wynajęcia oferujemy lokal usługowy położony na parterze z dużą witryną, w którym ostatnio prowadzona była działalność biurowa. Lokal idealnie nadaje się na biuro, gabinet, kancelarię, punkt handlowy, magazyn lub drobną produkcję.

Do lokalu przynależy miejsce parkingowe w garażu podziemnym na poziomie -1 (dodatkowo płatne 350 zł/miesiąc). Dodatkowo, dla firm zatrudniających więcej pracowników, istnieje możliwość korzystania z osiedlowego parkingu na kilka aut – wjazd przez bramę otwieraną pilotem.

 

Zapraszamy do kontaktu i umówienia się na prezentację lokalu.

地图

pic
pic
pic
pic
pic
pic
pic
pic
pic
pic
pic
pic
pic

问一个问题

全名

电子邮件

电话

问题

我允许在 Warsaw Wiertnicza 99 设有办事处的私营企业家 NIP 9512427031 通过 隐私政策 处理数据,并通过电话、电子邮件或短信接收房地产报价

您的请求已成功发送! 我们会尽快与您联系

9608

11 m2

浴室: 1

阳台: 1

换装室: 1

车库: 1

电梯: 1

地面: 1

楼层: 15

4 050

zł / 月份

  • $: 1017
  • €: 934
  • ₴: 37908

27206

44.40 m2

客房: 2

地面: 3

楼层: 4

4 500

zł / 月份

  • $: 1130
  • €: 1038
  • ₴: 42120

4701

0.00 m2

50 m2

地面: 1

4 500

zł / 月份

  • $: 1130
  • €: 1038
  • ₴: 42120
Chats